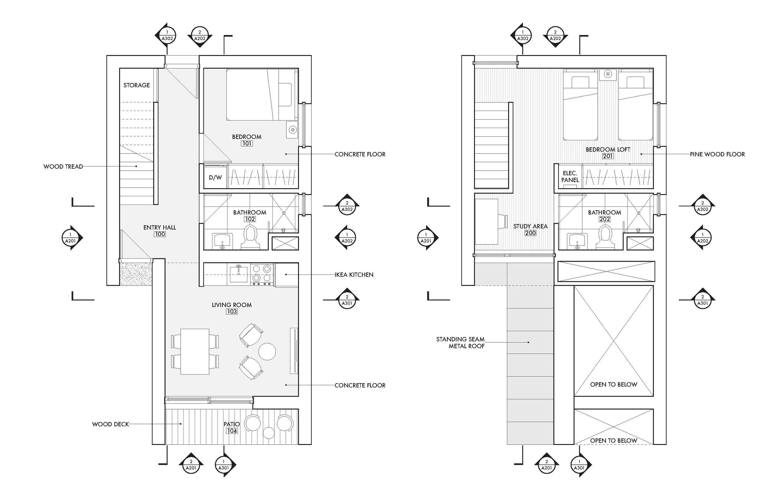
MICRO HAUS

U.S Department of Energy “Race 2 Zero” Passive House competition finalist.